Enter your address or APN/TMS to check if this home fits on your property
Enter your property street address or APN/TMS
Exterior
Construction

Mobile Homes Victoria
Manufactured Housing Consultants Victoria is on a mission to help every person, regardless of credit or credit history, who wants a mobile or modular home purchase one at the budget they can afford to live their very best lifestyle. We take pride in helping people that every other company has denied a home. With our robust partnerships, we can find a lender who is a match to your unique credit history and budget. If we can’t get you approved, no one can!
Get started with Mobile Homes Victoria
Find, design, and order your next home in a few clicks.
Other
Interior
Bathroom
Kitchen
Dealer License #:
Images of homes are solely for illustrative purposes and should not be relied upon. Images may not accurately represent the actual condition of a home as constructed, and may contain options which are not standard on all homes.
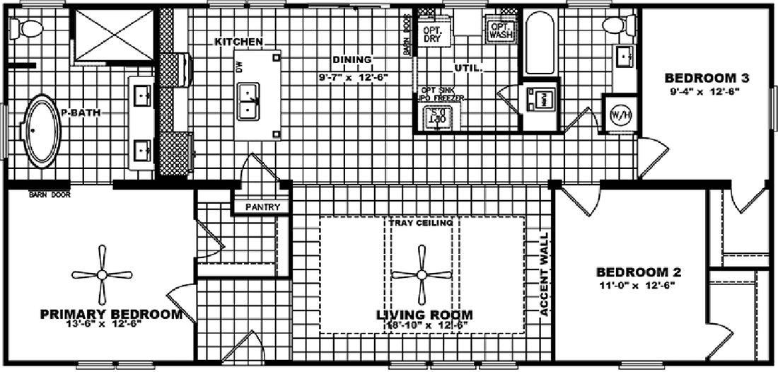
3 Bed | 2 Bath | 1,680 Sq. Ft. | 32' x 56'
3 Bed | 2 Bath | 1,680 Sq. Ft. | 32' x 56'
3 Bed | 2 Bath | 1,873 Sq. Ft. | 32' x 68'